德国SCHMALZ真空发生器是其自动化搬运技术中的核心元件,以其卓越的可靠性、高效能和紧凑设计而闻名于世。它基于文丘里原理,将压缩空气转化为稳定的真空,专为快速吸附和释放各种工件(尤其是表面光滑、无孔的材料)而优化。SCHMALZ真空发生器不仅体积小巧,能轻松集成到机械臂或自动化设备中,更具备极高的能源效率,通过智能节流技术最大限度地降低压缩空气消耗。其坚固的工业级构造确保了在严苛的生产环境中也能实现极低的维护成本和长久的使用寿命,是汽车、电子、包装和塑料等行业实现高效、精准真空抓取的理想选择。
一、品牌背景
德国SCHMALZ(施迈茨)是一家成立于1910年的全球知名真空设备制造商,总部位于德国巴登-符腾堡州的格拉腾(Glatten),业务覆盖真空元器件、搬运系统、夹具系统等领域,产品广泛应用于汽车、电子、食品加工等行业。
二、品牌产品
SCHMALZ 真空发生器
SCHMALZ 吸盘
SCHMALZ 滤芯
SCHMALZ 维修包
SCHMALZ 真空发生器配件
SCHMALZ 压力开关
SCHMALZ 毛细管
SCHMALZ 电磁阀
SCHMALZ 备件
SCHMALZ 保护盖
三、产品型号
SCHMALZ SMP 30 NO AS RD SO
SCHMALZ 10.01.01.00172
SCHMALZ SCP 20 NC AS VD
SCHMALZ SCP 15 NC AS RD PNP
SCHMALZ SCP 25 NC AS VD
SCHMALZ FILT-EINS 13X33 PE-POR SCP
SCHMALZ SMP 30 NO AS VD SO
SCHMALZ 10.02.02.04369 SCPSI2-14 G02 NO M12-5
SCHMALZ SGM 70 G1/4-IG
SCHMALZ VST-SXMPI-3010.02.02.02.992
SCHMALZ 10.05.01.00280
SCHMALZ 10.06.02.00635
SCHMALZ VST SMPi-ERW 10.02.02.99964
SCHMALZ SCP 20 NCAS VD10.02.02.00628/510.06.02.00634DC24V
SCHMALZ SUF 15 NBR-ESD-55 G1/8-AG
SCHMALZ 10.01.01.14186 PFYN 5 NBR-ESD-55 M5-AG
SCHMALZ SXMP 30 IMP H M12 PNP 24VD
SCHMALZ 921 15 80 SCHMELZPKTROHRCHEN,ID 1.15MM
SCHMALZ SAOB-110×55-NBR-60-G3/8-I
SCHMALZ SCP_20_NC_AS
SCHMALZ FGA 33 HT1-60 N018
SCHMALZ SAB 100 NBR-60 38-IG
SCHMALZ 10.05.01.00277
SCHMALZ SGON7*3.5 NBR-60 M3-AG
SCHMALZ SXMPI-30-IMP-H-2XM12-5
SCHMALZ 10.08.03.00169 21,05 STG-1-1/4-AG32.0
SCHMALZ SCP 20 NC AS VE 10.02 02.00626/3
SCHMALZ ERS-SET SCP 10.02.02.00809
SCHMALZ FILT-EINS 13x33 PE-POR SCP 10.02.02.00655
SCHMALZ 10.02.02.02502 SCPM 10 NC A VS-T
四、具体产品
真空生成在CNC加工中心夹持工件时对工艺可靠性有重要贡献。Schmalz专门开发了真空发生器以满足金属和玻璃加工行业的需求。这些系统不仅能处理材料,还能监测并分离吸入的液体或碎屑。

⑴用于加工中心的真空发生器
针对严苛湿加工应用而设计的Schmalz真空发生器专为应对这些恶劣条件开发。通过分离液体与碎屑并持续监测真空度,该设备为高效可靠的真空环境加工提供了理想条件。
①气动真空发生器 CVU
金属加工用CNC机床真空发生器
吸力高达8.6立方米/小时
疏散程度高达85%
可选配节能控制、储水器或真空开关以实现安全切换
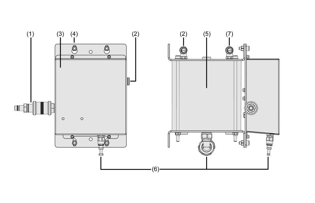
②压缩空气连接,带手动滑阀(1),用于开关真空发生器
软管连接 (2) 用于将真空发生器连接至夹紧装置或储液罐
可拆卸盖 (3) 带安装孔 (4) 用于螺丝固定,可安装磁性支架或储存盒 (5)
软管连接(6)用于有针对性地回收集的冷却液
带节能功能的版本:可选配带两个软管连接口的储液罐(5),用于连接夹具(2)和真空发生器(7)

③技术数据
用于金属加工的数控机床的真空发生器
吸力高达8.6立方米/小时
疏散程度高达85%
可选配节能控制、储液罐或真空开关以实现安全切换
五、产品优势
紧凑易携,可随时灵活用于不同机器。
得益于其坚固的设计,它既可用于加工区域,也可用于机器外部。
节能功能(可选)确保最大能效,节能超过50%
储液器(可选),用于缓冲和液体分离,在非高峰时段进行自动再循环。
得益于全封闭设计,营造符合人体工学的工作环境。此举不仅提供额外隔音效果,还作为挡板防止吸入液体雾化扩散至周围空气中。
六、典型应用
用于金属和塑料加工中真空夹持Equipment供应的真空Gen
适用于冷却润滑剂、微量润滑和干式加工
快速安装,可在不同机器上灵活使用
安装在加工区域内或机器外部
可选储液槽,用于分离和循环冷却润滑剂


